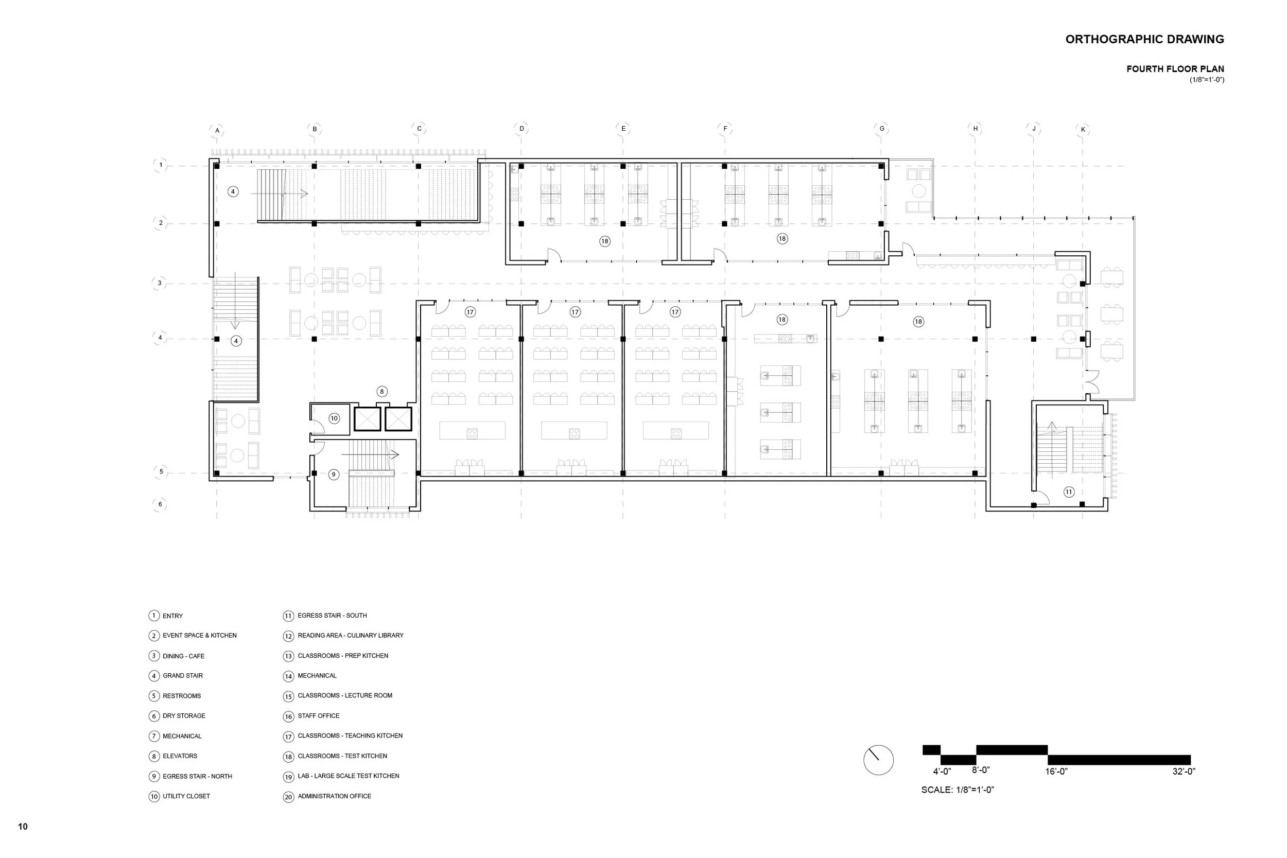
Art & Soul is a Culinary Arts School intended for inspired future chefs to relish and learn from the food and culture that exists in New Orleans. The purpose is to educate and engage forthcoming chefs in the future of the New Orleans food scene. New Orleans has a diverse background of cultures and famous foods, and the school can emphasize the signifi cance of the culinary arts and how it can bring people together. When researching the city, New Orleans has so many events each year which involve food and the arts and how they bring the community and visitors together such as Mardi Gras, the New Orleans Wine & Food Experience, and Arts for Arts Sake. It is an opportunity to contribute to the gastronomic, cultural, and famous food scene in New Orleans where the tourism of the city entices culinary graduates.

The culinary arts are an opportunity to connect people through food using the senses, bringing creative minds together to create art through the creation of food. It’s a way to understand and absorb cultures through the art of cooking. It was of utmost importance to provide an open space for people to move, congregate, and gather. I want to embrace natural light and ventilation within the building while keeping in mind its environmental constraints. Site analysis was extremely important in the development of the design. Although the winds in New Orleans are minimal throughout the year, it is still important to consider the primary directions from the south, southeast and eastern direction. Noise was a large factor in deciding the solid and porous spaces, as well as helping to distinguish private versus public spaces.

The concept of the building I want to convey is that architecture can inspire the art of food making and in turn the culinary arts & learning about the food, culture, and history of New Orleans can bring the community together.

ART + SOUL

Previous
Previous

SYMBIOTICA

Next
Next

THE ART OF CONNECTION